Innovation doesn’t happen without leadership, and often innovation is prompted by disruption.
Just west of Asheville, Haywood County has been through it: a pandemic, historic flooding, wildfires, the closing of Canton’s beloved paper mill, and Hurricane Helene.
It also has a cohort of incredible leaders who have come through those challenges together with a resiliency that inspires them to dream big.

The school district, community college, and the county are all behind an innovative educational experience that will launch in August 2026.
Many across North Carolina and around the country and the world are already watching. This kind of innovation is aligned with North Carolina’s attainment goal and the national Good Jobs Initiative, which could be a difference maker in the rebuilding of western North Carolina. On a recent trip to Singapore, leaders were curious about this school in our state.
Haywood Innovative — an accelerated middle school experience — is scheduled to open for the 2026-27 school year. It will be a replica of the nationally regarded Haywood Early College (HEC) for middle schoolers in Haywood County.
Haywood Innovative will be led by Lori Fox, the principal of HEC and the 2021 North Carolina Principal of the Year for the National Association of Secondary School Principals, but it would not be happening without the leadership of Shelley White, the president of Haywood Community College and the 2025 Community College President of the Year, Superintendent Trevor Putnam, the Haywood County Schools Board of Education, the Haywood Community College Board of Trustees, and the Haywood County Commissioners.
The Smoky Mountain News has reported that Graham Haynes, the assistant superintendent, said through listen-and-learns the school district learned that some students “really just want to hammer down and learn and have an accelerated curriculum.”
“We are in a competitive market,” Putnam said. “And we’re just trying to provide other options within the public school system.”
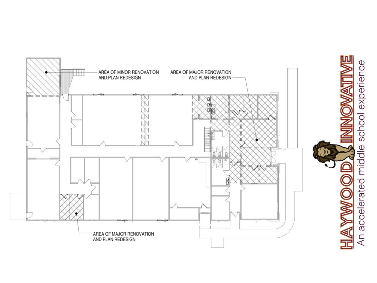
Fox says the middle school will be located in the Dogwood Building of Haywood Community College, and the early college which is currently housed there will expand and move into the community college’s Poplar Building. The building plans were recently finalized, and renovations are now underway.
Sign up for the EdWeekly, a Friday roundup of the most important education news of the week.
She expects as many as 120 students to attend the middle school — or 40 per grade. Fox hopes to hire an assistant principal and seven teachers.
“This will be a great opportunity for students in Haywood County to experience middle school on a community college campus,” says Fox.
Academic excellence, technology, and exposure to college and career pathways define the experience of students at HEC and will also define the experience of the middle schoolers. But that experience is wrapped in a culture Fox believes is the difference maker — a culture of care and compassion that ensures every student gets the most out of the educational opportunity.
“Our overarching goal,” says Fox, “is to prepare our students to be thinkers, designers, and communicators on the world stage.”
It works.
In 2024-25, HEC was an A school, exceeding growth for its students. Its overall achievement score was 98.3.
The early college is one of just five innovative Apple Distinguished Schools in North Carolina. You can see the worldwide directory here, and in this video, which is linked in the Apple’s directory, you can see what learning looks like at HEC and will look like at Haywood Innovative.
A grant from Dogwood Health Trust will allow Fox to replicate the Apple-supported learning experience for the middle school students.
Fox also plans to replicate exposure to industries and universities. She sees her students as the next generation of leaders, and she wants them to graduate understanding all that is possible.
Recent legislation in North Carolina requires all middle and high school students in public schools to have career development plans. Fox plans to extend HEC’s individual advising model down to Haywood Innovative. That means each student and their family will meet with Fox, the counselor, and a college liaison to align their middle school, high school, and community college experience with their plan.
Middle schoolers will have access to a high-school curriculum — for example, eighth grade will be mostly high school classes — which will have the ripple effect, says Fox, of letting them take more community college classes in high school.
Fox believes there are community college classes — like computer science, art, and health, for instance — that “could allow them some success as middle schoolers but that accelerated middle schoolers can definitely handle.” Middle schoolers would be exposed to the college-level instruction in self-contained classes. While it would take a change in state law for that to be paid for with state appropriations, private funding could pilot middle school exposure to community college classes.
Nationally, there is interest in earlier exposure to college. A May 2025 headline in the Associated Press asks, “Can middle schoolers handle college?”
California has been leading the way with exposing middle school students to college, and the state is now pushing to create access for more students — not just high achievers. In that state, middle school students may enroll in one community college course each semester free of charge.
A recent report using North Carolina data explores a new measure of school quality called “high school readiness.”
“As the name suggests, the basic idea is to capture how well a middle school prepares its students for the next stage of their education by quantifying its effects on high school grades — or to be more precise, ninth-grade grade-point averages,” says this article about the report.
Students at Haywood Innovative can expect not only to be ready for high school, but to be ready for college, careers, and the world.
Editor’s Note: Dogwood Health Trust supports the work of EdNC.
Recommended reading